物件詳細情報
| 所在地 | 小田原市城山3丁目 | ||
|---|---|---|---|
| 交通1 | JR東海道本線「小田原」駅 徒歩7分 | ||
| 交通2 | 伊豆箱根鉄道大雄山線「緑町」駅 徒歩16分 | ||
| 価格 | 2,190万円(税込)【値下がり額100万円】 | ||
| マンション名 | 城山ハイム | 物件番号 | 60260 |
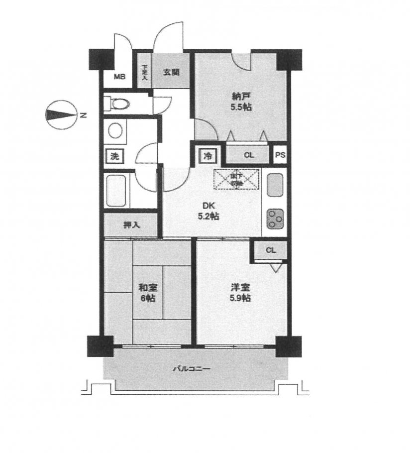
| 物件種別 | マンション | 間取 | 3LDK |
| 建物構造 | 鉄骨鉄筋コンクリート造 9階建 2階部分 | 完成 | 1980年3月築 リフォーム済 |
| 権利形態 | 所有権 | 現況 | 空室 |
| 駐車場 | なし | 管理形態 | 全部委託管理 日勤 |
| 管理費 | 8,900円/月 | 修繕積立金 | 14,500円/月 |
| 引渡し時期 | 相談 | 取引態様 | 媒介 |
| 小学区 | 小田原市立芦子小学校 ※1 | 中学区 | 小田原市立城山中学校 ※1 |
※1 実際の通学区域とは異なる場合がありますので必ず各学校毎の通学区域住所をご確認ください。
ローンシミュレーション
この物件を購入した場合の月々の返済額を試算します
価格
2,190万円(税込)
※ローンシミュレーションは、あくまで試算であり、実際のご返戻額とは異なる場合があります。
-
-
返済期間
年

-
金利
%

-
ボーナス時の増額(1回分)
円

-
-
-
借入金額
万円 -
頭金
万円

-
毎月の返済額60,752円 / 月








