物件詳細情報
| 所在地 | 小田原市南鴨宮1丁目 | ||
|---|---|---|---|
| 交通 | JR東海道本線「鴨宮」駅 徒歩8分 | ||
| 価格 | 2,680万円 | ||
| マンション名 | サンデュエル南鴨宮テゾーロ | 物件番号 | 58046 |
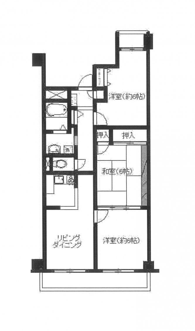
| 物件種別 | マンション | 間取 | 3SLDK |
| 建物構造 | 鉄筋コンクリート造 5階建 2階部分 | 完成 | 2012年1月築 |
| 権利形態 | 所有権 | 現況 | 居住中 |
| 管理形態 | 全部委託管理 常駐 | 管理費 | 10,700円/月 |
| 修繕積立金 | 39,200円/月 | 引渡し時期 | 相談 |
| 取引態様 | 媒介 | 小学区 | 小田原市立富士見小学校 ※1 |
| 中学区 | 小田原市立酒匂中学校 ※1 | ||
※1 実際の通学区域とは異なる場合がありますので必ず各学校毎の通学区域住所をご確認ください。
ローンシミュレーション
この物件を購入した場合の月々の返済額を試算します
価格
2,680万円(税込)
※ローンシミュレーションは、あくまで試算であり、実際のご返戻額とは異なる場合があります。
-
-
返済期間
年

-
金利
%

-
ボーナス時の増額(1回分)
円

-
-
-
借入金額
万円 -
頭金
万円

-
毎月の返済額60,752円 / 月








