アプリコットホームのホームページでは西湘【平塚・大磯・二宮周辺】エリア最大級の不動産情報量で、皆様のお住まい探しをサポートいたします。
会員限定公開の物件は売主様のご都合により一般公開が出来ませんので会員登録後にログインしてご覧頂けたらと思います。
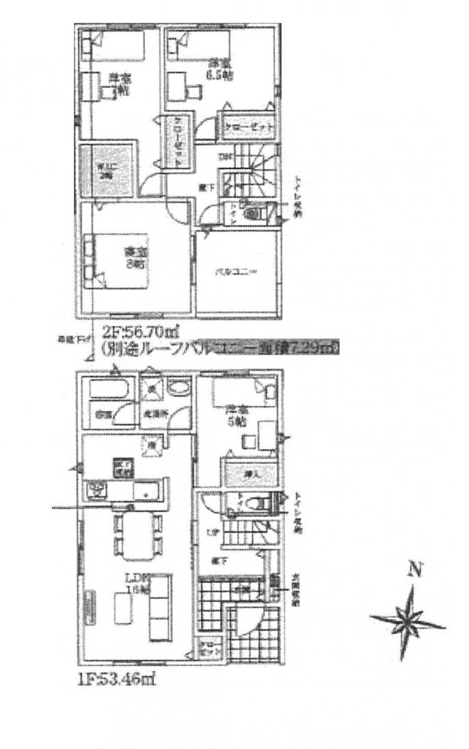
また店頭では当社ホームページに表示されている物件情報以外の未公開物件も多数取り扱っておりますのでお気軽にご来店ください。
| 平塚市 | 大磯町 | 二宮町 | 伊勢原市 | 秦野市 | 小田原市 | 寒川町 | 厚木市 | 海老名市 | 綾瀬市 | |
|---|---|---|---|---|---|---|---|---|---|---|
| 173件 | 18件 | 9件 | 64件 | 90件 | 56件 | 39件 | 91件 | 0件 | 113件 | |
| 171件 | 30件 | 22件 | 59件 | 131件 | 136件 | 35件 | 145件 | 0件 | 78件 | |
| 129件 | 8件 | 5件 | 18件 | 24件 | 25件 | 6件 | 109件 | 0件 | 26件 | |
| 370件 | 3件 | 0件 | 102件 | 240件 | 5件 | 0件 | 2件 | 0件 | 0件 | |
| 267件 | 23件 | 12件 | 88件 | 188件 | 83件 | 28件 | 122件 | 0件 | 73件 |
会員限定物件の閲覧には