物件詳細情報
| 所在地 | 平塚市明石町 | ||
|---|---|---|---|
| 交通 | JR東海道本線「平塚」駅 徒歩5分 | ||
| 価格 | 2,390万円【値下がり額90万円】 | ||
| マンション名 | ナイスアーバン湘南平塚明石町 | 物件番号 | 63998 |
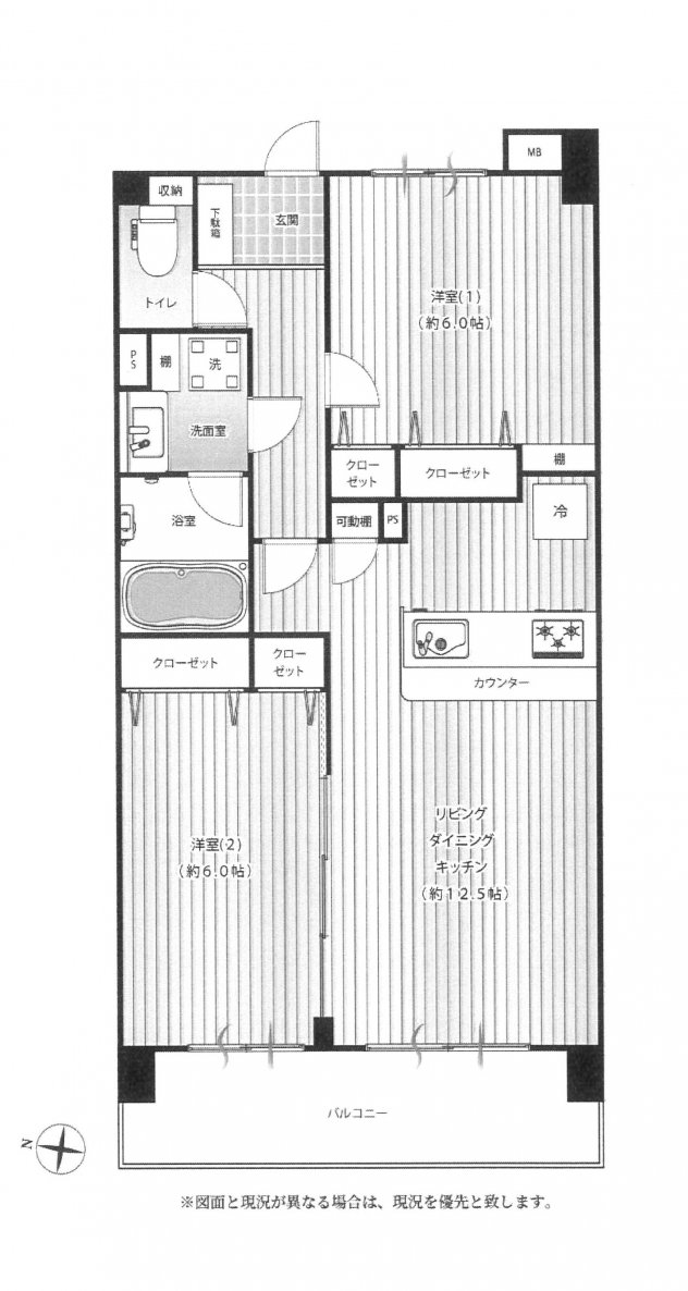
| 物件種別 | マンション | 間取 | 2SLDK |
| 建物構造 | 鉄骨鉄筋コンクリート造 10階建 (地上10階/地下1階)4階部分 | 完成 | 1993年12月築 |
| 権利形態 | 所有権 | 現況 | 空室 |
| 駐車場 | あり | 駐車場料金 | 16000円/月〜18000円/月 |
| 管理形態 | 全部委託管理 巡回方式 | 管理費 | 15,910円/月 |
| 修繕積立金 | 8,810円/月 | 引渡し時期 | 相談 |
| 取引態様 | 媒介 | 小学区 | 平塚市立崇善小学校 ※1 |
| 中学区 | 平塚市立江陽中学校 ※1 | ||
※1 実際の通学区域とは異なる場合がありますので必ず各学校毎の通学区域住所をご確認ください。
ローンシミュレーション
この物件を購入した場合の月々の返済額を試算します
価格
2,390万円(税込)
※ローンシミュレーションは、あくまで試算であり、実際のご返戻額とは異なる場合があります。
-
-
返済期間
年

-
金利
%

-
ボーナス時の増額(1回分)
円

-
-
-
借入金額
万円 -
頭金
万円

-
毎月の返済額60,752円 / 月








