物件詳細情報
| 所在地 | 厚木市妻田西3丁目 | ||
|---|---|---|---|
| 交通 | 小田急小田原線「本厚木」駅 バス12分「妻田薬師」停歩5分 | ||
| 価格 | 4,080万円(税込)【値下がり額100万円】 | ||
| 物件番号 | 63798 | 物件種別 | 新築一戸建て(第14 1号棟) |
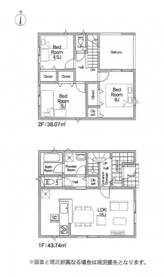
| 間取 | 4SLDK | 建物構造 | 木造 2階建 |
| 完成 | 2026年4月完成予定 | 権利形態 | 所有権 |
| 都市計画 | 市街化区域 | 地目 | 宅地 |
| 用途地域 | 第一種中高層住専 | 建ぺい率 | 60% |
| 容積率 | 200% | 現況 | 建築中 |
| 駐車場 | 2台 | 引渡し時期 | 相談 |
| 取引態様 | 媒介 | 小学区 | 厚木市立清水小学校 ※1 |
| 中学区 | 厚木市立睦合東中学校 ※1 | ||
※1 実際の通学区域とは異なる場合がありますので必ず各学校毎の通学区域住所をご確認ください。
ローンシミュレーション
この物件を購入した場合の月々の返済額を試算します
価格
4,080万円(税込)
※ローンシミュレーションは、あくまで試算であり、実際のご返戻額とは異なる場合があります。
-
-
返済期間
年

-
金利
%

-
ボーナス時の増額(1回分)
円

-
-
-
借入金額
万円 -
頭金
万円

-
毎月の返済額60,752円 / 月








