物件詳細情報
| 所在地 | 南足柄市和田河原 | ||
|---|---|---|---|
| 交通 | 伊豆箱根鉄道大雄山線「和田河原」駅 徒歩4分 | ||
| 価格 | 2,480万円(税込) | ||
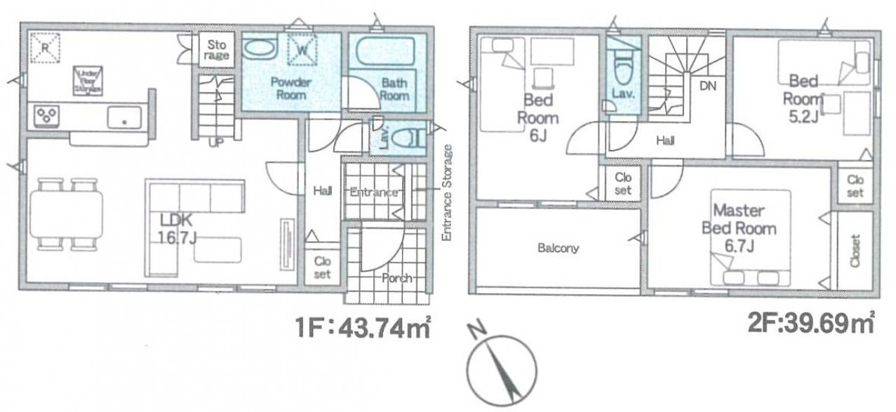
| 物件番号 | 63531 | 物件種別 | 新築一戸建て(第17 3号棟) |
| 間取 | 4LDK | 建物構造 | 木造 2階建 |
| 完成 | 2026年1月完成予定 | 権利形態 | 所有権 |
| 都市計画 | 市街化区域 | 地目 | 宅地 |
| 用途地域 | 第一種低層住専 | 建ぺい率 | 50% |
| 容積率 | 100% | 現況 | 建築中 |
| 駐車場 | 2台 | 引渡し時期 | 相談 |
| 取引態様 | 媒介 | ||
ローンシミュレーション
この物件を購入した場合の月々の返済額を試算します
価格
2,480万円(税込)
※ローンシミュレーションは、あくまで試算であり、実際のご返戻額とは異なる場合があります。
-
-
返済期間
年

-
金利
%

-
ボーナス時の増額(1回分)
円

-
-
-
借入金額
万円 -
頭金
万円

-
毎月の返済額60,752円 / 月








