物件詳細情報
| 所在地 | 平塚市虹ケ浜 | ||
|---|---|---|---|
| 交通1 | JR東海道本線「平塚」駅 バス10分「なでしこ公民館前」停歩4分 | ||
| 交通2 | JR東海道本線「大磯」駅 バス8分「なでしこ公民館前」停歩4分 | ||
| 価格 | 3,690万円(税込) | ||
| マンション名 | ダイアパレス湘南虹ケ浜オーシャンビュー | 物件番号 | 63446 |
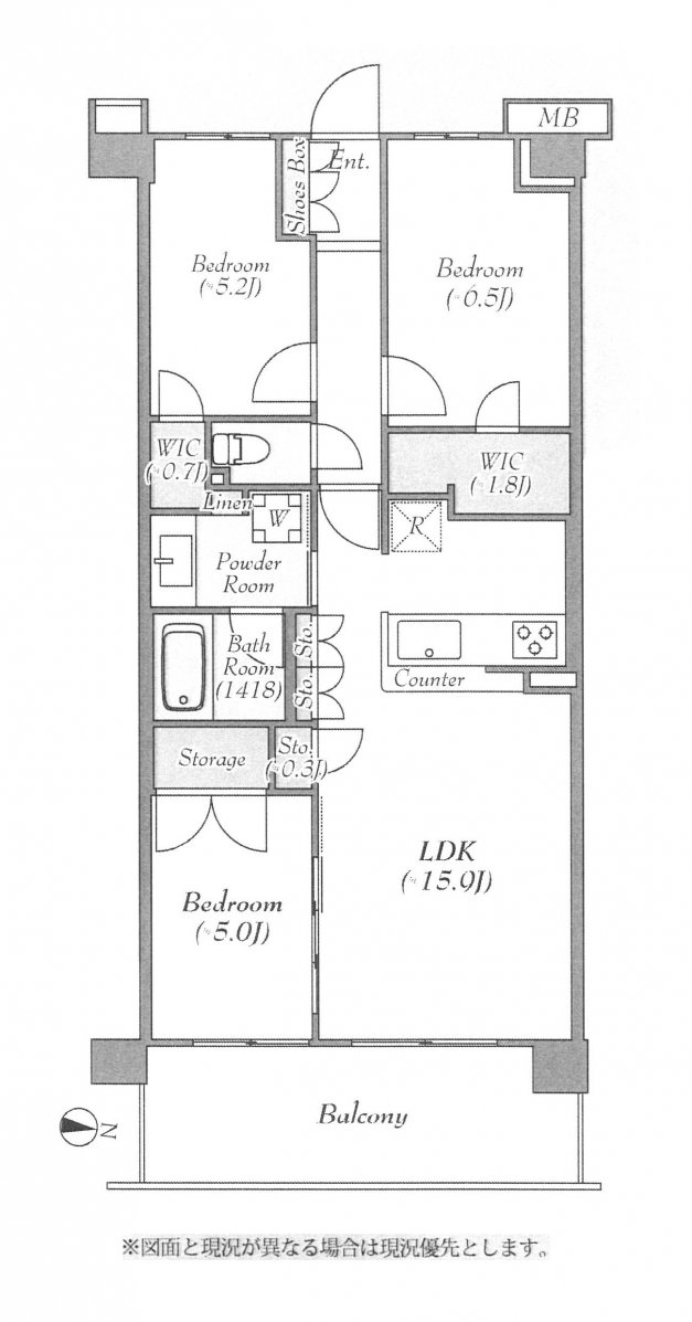
| 物件種別 | マンション | 間取 | 3LDK |
| 建物構造 | 鉄筋コンクリート造 10階建 6階部分 | 完成 | 1996年8月築 リフォーム済 |
| 権利形態 | 所有権 | 現況 | 空室 |
| 駐車場 | あり | 駐車場料金 | 6000円/月〜14000円/月 |
| 管理形態 | 全部委託管理 日勤 | 管理費 | 9,980円/月 |
| 修繕積立金 | 18,100円/月 | 引渡し時期 | 即時 |
| 取引態様 | 媒介 | 小学区 | 平塚市立なでしこ小学校 ※1 |
| 中学区 | 平塚市立浜岳中学校 ※1 | ||
※1 実際の通学区域とは異なる場合がありますので必ず各学校毎の通学区域住所をご確認ください。
ローンシミュレーション
この物件を購入した場合の月々の返済額を試算します
価格
3,690万円(税込)
※ローンシミュレーションは、あくまで試算であり、実際のご返戻額とは異なる場合があります。
-
-
返済期間
年

-
金利
%

-
ボーナス時の増額(1回分)
円

-
-
-
借入金額
万円 -
頭金
万円

-
毎月の返済額60,752円 / 月








