物件詳細情報
| 所在地 | 厚木市長谷 | ||
|---|---|---|---|
| 交通 | 小田急小田原線「本厚木」駅 バス14分「依胡田」停歩3分 | ||
| 価格 | 3,280万円(税込) | ||
| マンション名 | 厚木第9ダイヤモンドマンション | 物件番号 | 63249 |
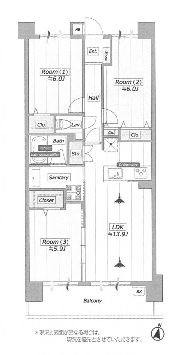
| 物件種別 | マンション | 間取 | 4LDK |
| 建物構造 | 鉄筋コンクリート造 7階建 4階部分 | 完成 | 1975年7月築 リフォーム済 |
| 権利形態 | 所有権 | 現況 | 空室 |
| 駐車場 | あり | 駐車場料金 | 1500円/月 |
| 管理形態 | 全部委託管理 日勤 | 管理費 | 17,290円/月 |
| 修繕積立金 | 18,670円/月 | 引渡し時期 | 相談 |
| 取引態様 | 媒介 | 小学区 | 厚木市立愛甲小学校 ※1 |
| 中学区 | 厚木市立東名中学校 ※1 | ||
※1 実際の通学区域とは異なる場合がありますので必ず各学校毎の通学区域住所をご確認ください。
ローンシミュレーション
この物件を購入した場合の月々の返済額を試算します
価格
3,280万円(税込)
※ローンシミュレーションは、あくまで試算であり、実際のご返戻額とは異なる場合があります。
-
-
返済期間
年

-
金利
%

-
ボーナス時の増額(1回分)
円

-
-
-
借入金額
万円 -
頭金
万円

-
毎月の返済額60,752円 / 月








