物件詳細情報
| 所在地 | 平塚市千石河岸 | ||
|---|---|---|---|
| 交通 | JR東海道本線「平塚」駅 バス6分「高浜台」停歩3分 | ||
| 価格 | 2,280万円(税込) | ||
| マンション名 | シーサイドパレス平塚 | 物件番号 | 63118 |
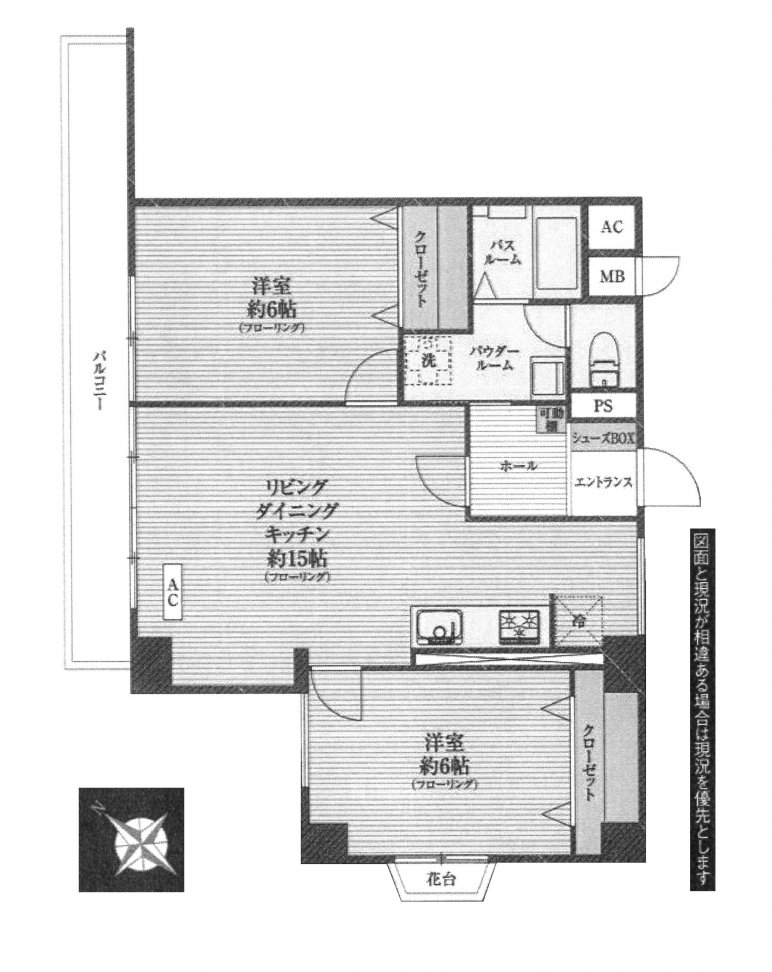
| 物件種別 | マンション | 間取 | 2LDK |
| 建物構造 | 鉄筋コンクリート造 6階建 (地上6階/地下1階)3階部分 | 完成 | 1982年7月築 |
| 権利形態 | 所有権 | 現況 | 空室 |
| 駐車場 | 敷地内に空なし | 管理形態 | 全部委託管理 日勤 |
| 管理費 | 10,370円/月 | 修繕積立金 | 7,080円/月 |
| 引渡し時期 | 相談 | 取引態様 | 媒介 |
| 小学区 | 平塚市立港小学校 ※1 | 中学区 | 平塚市立太洋中学校 ※1 |
※1 実際の通学区域とは異なる場合がありますので必ず各学校毎の通学区域住所をご確認ください。
ローンシミュレーション
この物件を購入した場合の月々の返済額を試算します
価格
2,280万円(税込)
※ローンシミュレーションは、あくまで試算であり、実際のご返戻額とは異なる場合があります。
-
-
返済期間
年

-
金利
%

-
ボーナス時の増額(1回分)
円

-
-
-
借入金額
万円 -
頭金
万円

-
毎月の返済額60,752円 / 月








