物件詳細情報
| 所在地 | 綾瀬市上土棚北3丁目 | ||
|---|---|---|---|
| 交通1 | 小田急江ノ島線「長後」駅 徒歩26分 | ||
| 交通2 | 小田急江ノ島線「長後」駅 バス6分「上土棚」停歩4分 | ||
| 価格 | 3,580万円(税込)【値下がり額200万円】 | ||
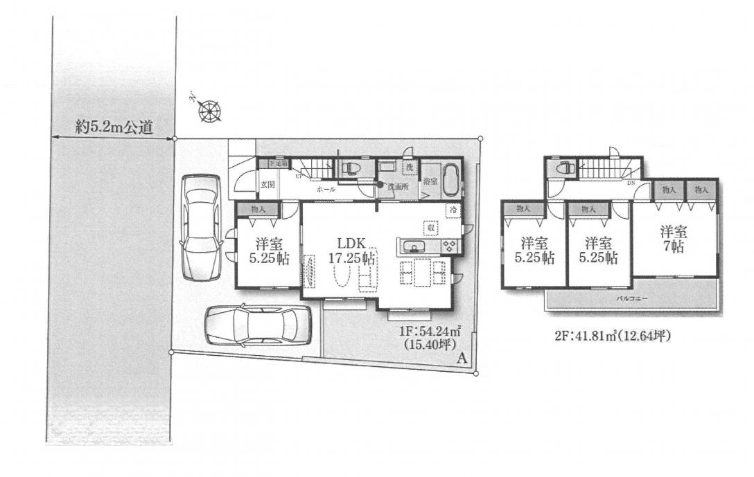
| 物件番号 | 62525 | 物件種別 | 新築一戸建て(第24 3号棟) |
| 間取 | 4LDK | 建物構造 | 木造 2階建 |
| 完成 | 2025年11月完成予定 | 権利形態 | 所有権 |
| 都市計画 | 市街化区域 | 地目 | 宅地 |
| 用途地域 | 準工業地域 | 建ぺい率 | 60% |
| 容積率 | 200% | 現況 | 建築中 |
| 駐車場 | 2台 | 引渡し時期 | 相談 |
| 取引態様 | 媒介 | 小学区 | 綾瀬市立綾南小学校 ※1 |
| 中学区 | 綾瀬市立綾瀬中学校 ※1 | ||
※1 実際の通学区域とは異なる場合がありますので必ず各学校毎の通学区域住所をご確認ください。
ローンシミュレーション
この物件を購入した場合の月々の返済額を試算します
価格
3,580万円(税込)
※ローンシミュレーションは、あくまで試算であり、実際のご返戻額とは異なる場合があります。
-
-
返済期間
年

-
金利
%

-
ボーナス時の増額(1回分)
円

-
-
-
借入金額
万円 -
頭金
万円

-
毎月の返済額60,752円 / 月








