物件詳細情報
| 所在地 | 小田原市酒匂 | ||
|---|---|---|---|
| 交通 | JR東海道本線「鴨宮」駅 徒歩8分 | ||
| 価格 | 3,880万円(税込)【値下がり額170万円】 | ||
| 物件番号 | 62469 | 物件種別 | 新築一戸建て(1期 1号棟) |
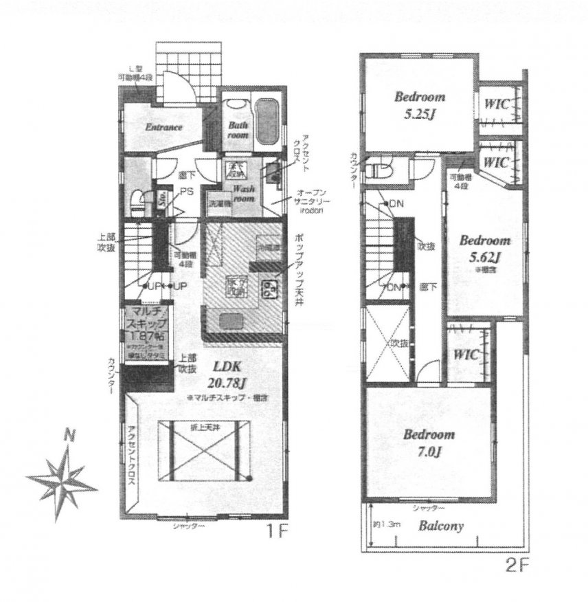
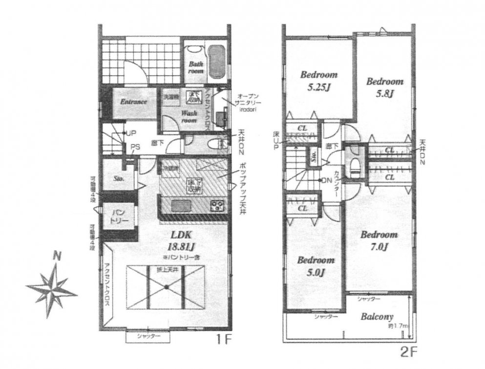
| 間取 | 3LDK | 建物構造 | 木造 2階建 |
| 完成 | 2025年12月築 | 権利形態 | 所有権 |
| 都市計画 | 市街化区域 | 地目 | 宅地 |
| 用途地域 | 第一種住居地域 | 建ぺい率 | 60% |
| 容積率 | 200% | 現況 | 空家 |
| 駐車場 | 2台 | 引渡し時期 | 相談 |
| 取引態様 | 媒介 | 小学区 | 小田原市立酒匂小学校 ※1 |
| 中学区 | 小田原市立酒匂中学校 ※1 | ||
※1 実際の通学区域とは異なる場合がありますので必ず各学校毎の通学区域住所をご確認ください。
ローンシミュレーション
この物件を購入した場合の月々の返済額を試算します
価格
3,880万円(税込)
※ローンシミュレーションは、あくまで試算であり、実際のご返戻額とは異なる場合があります。
-
-
返済期間
年

-
金利
%

-
ボーナス時の増額(1回分)
円

-
-
-
借入金額
万円 -
頭金
万円

-
毎月の返済額60,752円 / 月








