物件詳細情報
| 所在地 | 秦野市鶴巻北2丁目 | ||
|---|---|---|---|
| 交通 | 小田急小田原線「鶴巻温泉」駅 徒歩5分 | ||
| 価格 | 2,100万円【値下がり額100万円】 | ||
| マンション名 | ベルヴィル鶴巻 | 物件番号 | 62302 |
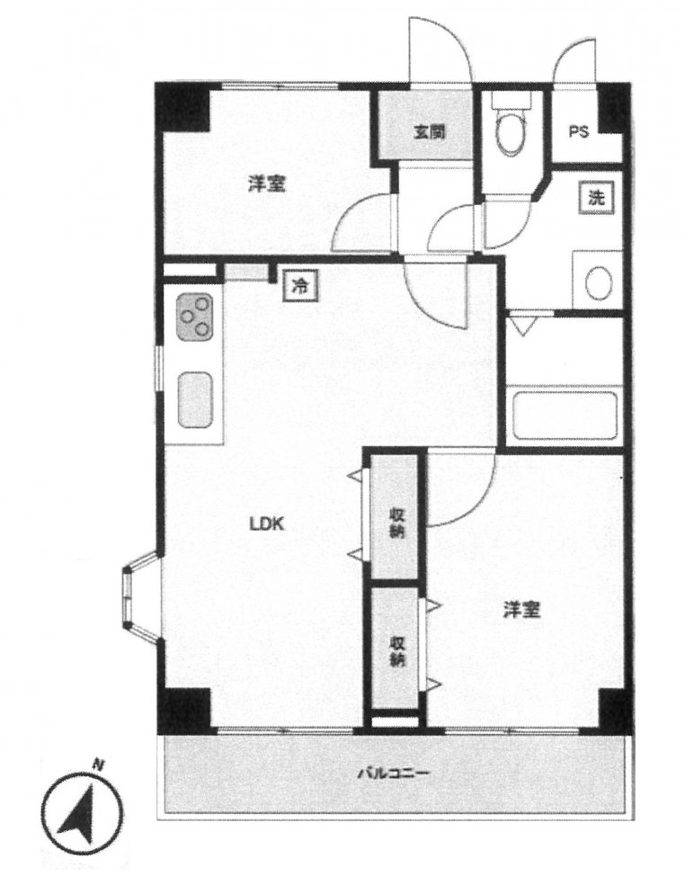
| 物件種別 | マンション | 間取 | 3LDK |
| 建物構造 | 鉄筋コンクリート造 11階建 4階部分 | 完成 | 1989年6月築 |
| 権利形態 | 所有権 | 現況 | 居住中 |
| 駐車場 | 敷地内に空あり | 管理形態 | 全部委託管理 巡回方式 |
| 管理費 | 23,041円/月 | 修繕積立金 | 8,240円/月 |
| 引渡し時期 | 相談 | 取引態様 | 媒介 |
| 小学区 | 秦野市立鶴巻小学校 ※1 | 中学区 | 秦野市立鶴巻中学校 ※1 |
※1 実際の通学区域とは異なる場合がありますので必ず各学校毎の通学区域住所をご確認ください。
ローンシミュレーション
この物件を購入した場合の月々の返済額を試算します
価格
2,100万円(税込)
※ローンシミュレーションは、あくまで試算であり、実際のご返戻額とは異なる場合があります。
-
-
返済期間
年

-
金利
%

-
ボーナス時の増額(1回分)
円

-
-
-
借入金額
万円 -
頭金
万円

-
毎月の返済額60,752円 / 月








