物件詳細

新築一戸建て平塚市四之宮3丁目

所在地 平塚市四之宮3丁目
交通 JR東海道本線「平塚」駅 バス18分「小松電子前」停歩5分
土地面積 110.50㎡
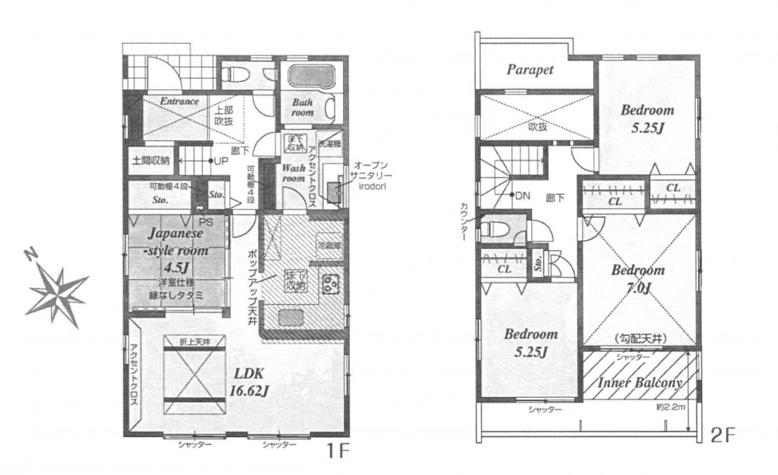
建物面積 101.23㎡
間取り 4LDK
築年月 2025年12月完成予定

ポイント


全居室二面採光!リビング全体を見渡せる対面キッチン!
パントリーなど収納豊富!充実した設備仕様!
バルコニー2か所!カースペース2台可!

お電話でのお問い合わせ

0120-721-321【電話受付】平日9:00~17:00

物件詳細情報

所在地 平塚市四之宮3丁目
交通 JR東海道本線「平塚」駅 バス18分「小松電子前」停歩5分
価格 3,290万円(税込)
物件番号 61744 物件種別 新築一戸建て(3号棟)
間取 4LDK 建物構造 木造 2階建  
完成 2025年12月完成予定  権利形態 所有権 
都市計画 市街化区域  地目 宅地 
用途地域 工業地域  建ぺい率 60% 
容積率 200%  現況 建築中 
駐車場 2台  引渡し時期 相談 
取引態様 媒介  小学区 平塚市立大野小学校 ※1 
中学区 平塚市立神明中学校 ※1 

※1 実際の通学区域とは異なる場合がありますので必ず各学校毎の通学区域住所をご確認ください。

ローンシミュレーション

この物件を購入した場合の月々の返済額を試算します

価格

3,290万円(税込)

※ローンシミュレーションは、あくまで試算であり、実際のご返戻額とは異なる場合があります。

    • 返済期間

    • 金利

    • ボーナス時の増額(1回分)

    • 借入金額

      万円
    • 頭金

      万円

毎月の返済額60,752円 / 月

周辺地図

まずはお気軽にお問い合わせください。
お急ぎの方はお電話でのお問い合わせも受け付けております。

0120-721-321【電話受付】平日9:00~17:00

エリア最大級の物件情報量無料会員登録で閲覧可能物件数が大幅アップします!

アプリコットホームのホームページでは西湘【平塚・大磯・二宮周辺】エリア最大級の不動産情報量で、皆様のお住まい探しをサポートいたします。
会員限定公開の物件は売主様のご都合により一般公開が出来ませんので会員登録後にログインしてご覧頂けたらと思います。
また店頭では当社ホームページに表示されている物件情報以外の未公開物件も多数取り扱っておりますのでお気軽にご来店ください。

平塚市 大磯町 二宮町 伊勢原市 秦野市 小田原市 寒川町 厚木市 海老名市 綾瀬市
新築一戸建て新築一戸建て 150件 16件 5件 45件 87件 53件 25件 85件 0件 92件
中古一戸建て中古一戸建て 176件 27件 24件 43件 132件 130件 31件 147件 0件 73件
中古マンション中古マンション 123件 7件 3件 20件 28件 28件 4件 91件 0件 25件
土地土地 356件 3件 0件 98件 249件 7件 0件 2件 0件 0件
値下げ物件値下げ物件 256件 18件 13件 78件 181件 75件 29件 114件 0件 68件

無料!会員限定物件の閲覧には
会員登録が必要です

お問い合わせ

0120-721-321【電話受付】平日9:00~17:00

FAX 0120-721-321

アプリコットホーム株式会社

〒254-0014 神奈川県平塚市四之宮5-20-18