物件詳細情報
| 所在地 | 伊勢原市串橋 | ||
|---|---|---|---|
| 交通 | 小田急小田原線「鶴巻温泉」駅 バス5分「串橋完全センター」停歩3分 | ||
| 価格 | 2,450万円(税込)【値下がり額49万円】 | ||
| 物件番号 | 61372 | 物件種別 | 中古一戸建て | 
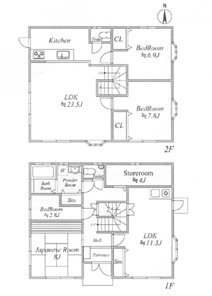
| 間取 | 3LDK | 建物構造 | 木造 2階建 | 
| 完成 | 2002年1月築 リフォーム済 | 権利形態 | 所有権 | 
| 都市計画 | 市街化区域 | 地目 | 宅地 | 
| 用途地域 | 第一種低層住専 | 建ぺい率 | 50% | 
| 容積率 | 100% | 現況 | 空家 | 
| 駐車場 | 2台 | 引渡し時期 | 相談 | 
| 取引態様 | 媒介 | 小学区 | 伊勢原市立比々多小学校 ※1 | 
| 中学区 | 伊勢原市立山王中学校 ※1 | ||
※1 実際の通学区域とは異なる場合がありますので必ず各学校毎の通学区域住所をご確認ください。
ローンシミュレーション
この物件を購入した場合の月々の返済額を試算します
価格
2,450万円(税込)
※ローンシミュレーションは、あくまで試算であり、実際のご返戻額とは異なる場合があります。
- 
										- 
												返済期間 年  
- 
												金利 %  
- 
												ボーナス時の増額(1回分) 円  
 
- 
												
- 
										- 
												借入金額 万円
- 
												頭金 万円  
 
- 
												
毎月の返済額60,752円 / 月
									








 この物件の資料請求
この物件の資料請求 来店予約はこちら
来店予約はこちら 
 
 





 一般公開物件
一般公開物件 無料会員登録はこちら
無料会員登録はこちら

 メールでのお問い合わせ
メールでのお問い合わせ
 アクセスはこちら
アクセスはこちら