物件詳細情報
| 所在地 | 伊勢原市高森台1丁目 | ||
|---|---|---|---|
| 交通1 | 小田急小田原線「愛甲石田」駅 徒歩18分 | ||
| 交通2 | 小田急小田原線「愛甲石田」駅 バス3分「愛甲橋」停歩4分 | ||
| 価格 | 3,599万円(税込)【値下がり額400万円】 | ||
| 物件番号 | 60641 | 物件種別 | 新築一戸建て(3期 1号棟) |
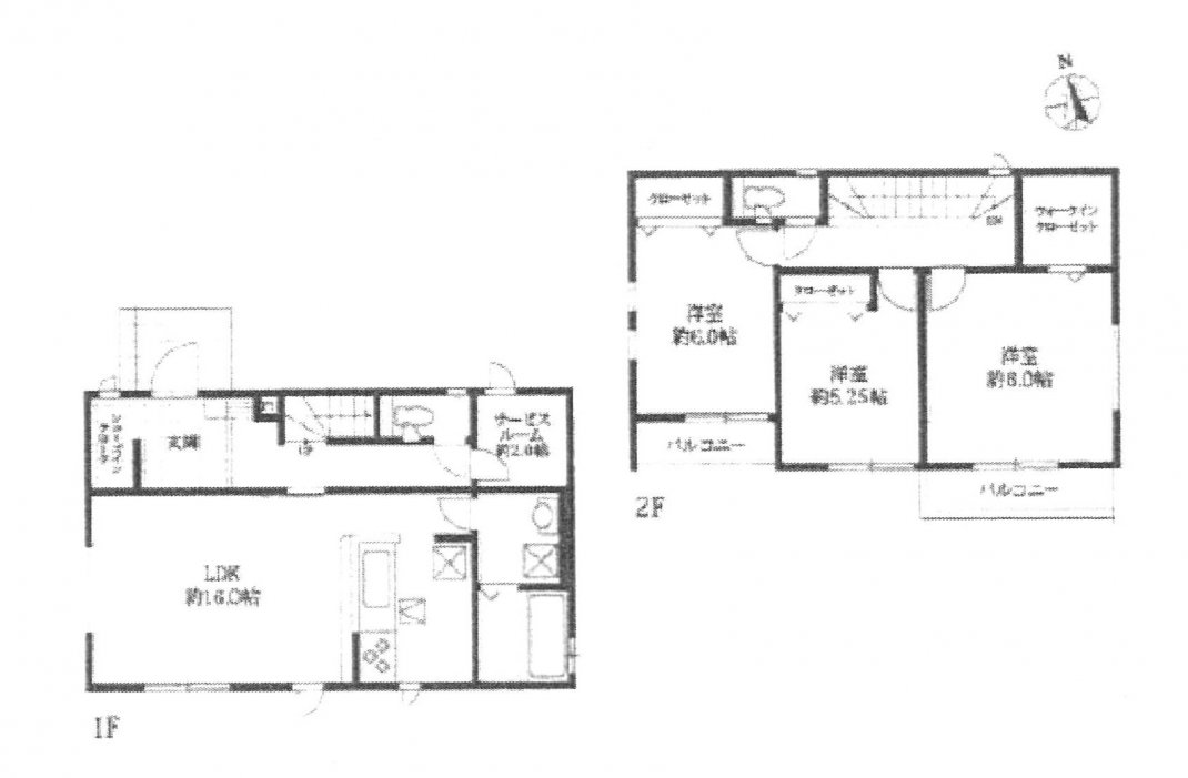
| 間取 | 4LDK | 建物構造 | 木造 2階建 |
| 完成 | 2025年11月完成予定 | 権利形態 | 所有権 |
| 都市計画 | 市街化区域 | 地目 | 宅地 |
| 用途地域 | 第一種低層住専 | 建ぺい率 | 50% |
| 容積率 | 100% | 現況 | 建築中 |
| 駐車場 | 2台 | 引渡し時期 | 相談 |
| 取引態様 | 媒介 | 小学区 | 伊勢原市立緑台小学校 ※1 |
| 中学区 | 伊勢原市立成瀬中学校 ※1 | ||
※1 実際の通学区域とは異なる場合がありますので必ず各学校毎の通学区域住所をご確認ください。
ローンシミュレーション
この物件を購入した場合の月々の返済額を試算します
価格
3,599万円(税込)
※ローンシミュレーションは、あくまで試算であり、実際のご返戻額とは異なる場合があります。
-
-
返済期間
年

-
金利
%

-
ボーナス時の増額(1回分)
円

-
-
-
借入金額
万円 -
頭金
万円

-
毎月の返済額60,752円 / 月








