物件詳細情報
| 所在地 | 伊勢原市岡崎 | ||
|---|---|---|---|
| 交通 | 小田急小田原線「伊勢原」駅 バス5分「岡崎福祉館前」停歩3分 | ||
| 価格 | 3,500万円【値下がり額200万円】 | ||
| 物件番号 | 50057 | 物件種別 | 中古一戸建て |
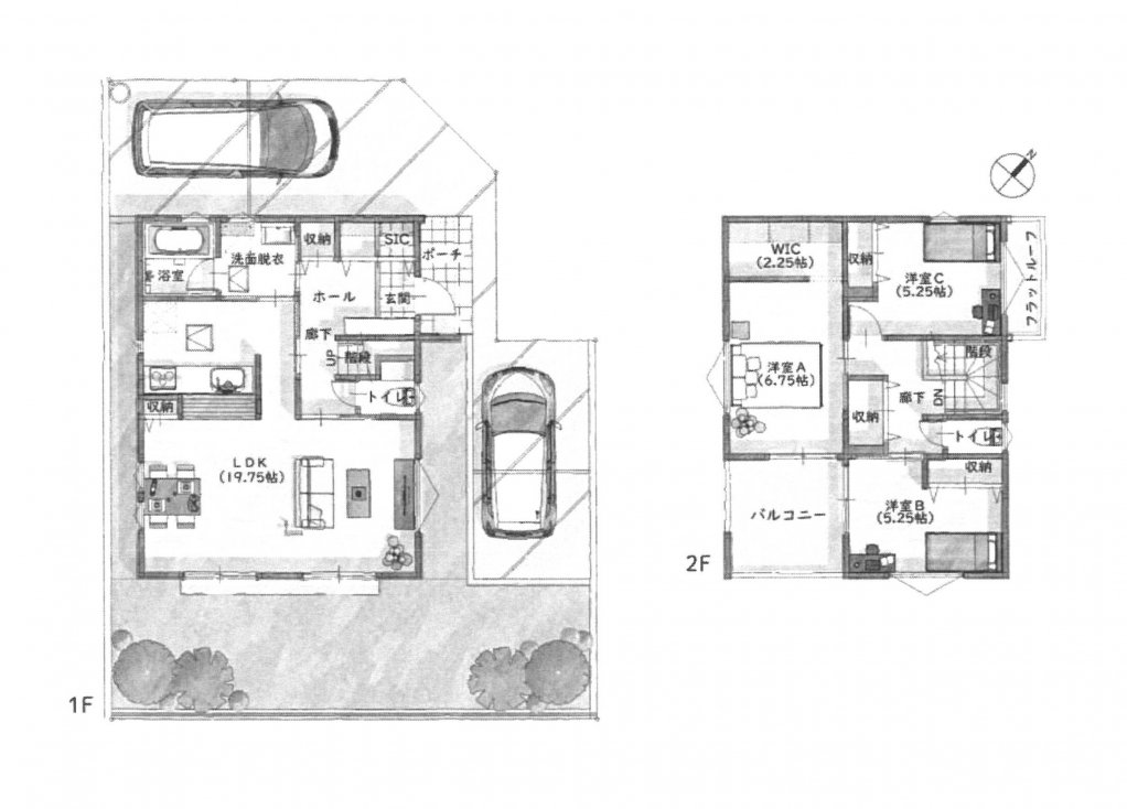
| 間取 | 2LDK | 建物構造 | 木造 2階建 |
| 完成 | 2022年3月築 | 接道状況 | 西 4.5M 公道 |
| 権利形態 | 所有権 | 都市計画 | 市街化調整区域 |
| 地目 | 宅地 | 用途地域 | 無指定地域 |
| 建ぺい率 | 50% | 容積率 | 100% |
| 現況 | 居住中 | 駐車場 | 2台 |
| 引渡し時期 | 相談 | 取引態様 | 媒介 |
| 小学区 | 伊勢原市立竹園小学校 ※1 | 中学区 | 伊勢原市立伊勢原中学校 ※1 |
※1 実際の通学区域とは異なる場合がありますので必ず各学校毎の通学区域住所をご確認ください。
ローンシミュレーション
この物件を購入した場合の月々の返済額を試算します
価格
3,500万円(税込)
※ローンシミュレーションは、あくまで試算であり、実際のご返戻額とは異なる場合があります。
-
-
返済期間
年

-
金利
%

-
ボーナス時の増額(1回分)
円

-
-
-
借入金額
万円 -
頭金
万円

-
毎月の返済額60,752円 / 月








